Sådan får vi tegnet det rigtige hus til jer
Nogen kommer til os med en klar idé om, hvad de ønsker. Andre er mere vævende og har nogle tanker om, hvad funktioner.
Du kan sagtens vælge en plantegning, som vi bygger én-til-én, hvis din byggegrund tillader det. Det kan også være, at du finder én, som lige mangler en ekstra detalje. Så tilføjer vi bare det.
Vi kan også start helt fra scratch og tegne en helt unik planløsning lige efter dit hoved. Som for eksempel den her.
Du må også gerne komme med din egen skitse, som eksemplet herunder.
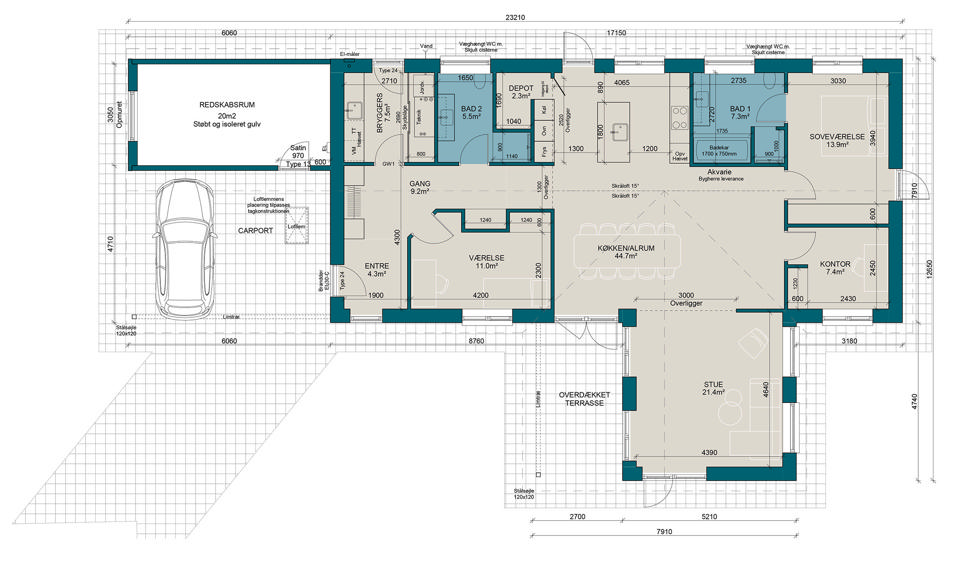
Kundes egen skitse bearbejdet til målfast plantegning
Det koster ikke noget at flytte streger
Bliver du pludselig i tvivl...
Mød tegnestuen
På tegnestuen bliver tankerne forvandlet til streger
Når du sammen med byggerådgiveren har fået klarlagt dine ønsker til det nye hus, er det op til tegnerne at koge idéer og tanker ned til skitser og måltegninger.
Lad dig inspirere af hundredevis af plantegninger. Bo som dig.
Hvordan ser dit drømmehus ud? Alle vil bo som ingen andre, men de fleste vil gerne have inspiration. Udforsk vores mange plantegninger, eller skitser din egen i vores tegneprogram.
Byg med os
Se, hvordan vi hjælper dig til dørs
| Forløbet fra A-Å |
| Et godt samarbejde |
| Få tegnet det rigtige hus |
| En pris der holder |
| Sådan bygger vi dit hus |
| Ansvarligt byggeri |