Tilgængelige tagtyper
- Valmtag
- Saddletag
- Ensidig tag
Er du interesseret i at vide mere?
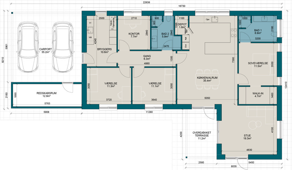
V160-3
V160-3 | Plantegning til nybyg | Milton Huse
Overskrift om vores plantegninger til vinkelhuse
Udvælg dit drømmehus blandt over 500 muligheder, eller benyt Plantegneren til at designe det selv.
Overskrift om muligheder for at komme til fremvisning
Lorem ipsum dolor sit amet, consectetur adipiscing elit. Aenean euismod bibendum laoreet. Proin gravida dolor sit amet lacus accumsan et viverra justo commodo. Proin sodales pulvinar sic.
Få en eksklusiv fremvisning af Miltons inspirationshuse - kun for dig
Alle inspirationshusene holder åbent kun for dig - vi har tid, når du har tid. Få inspiration til dit næste hjem i husene - her er god tid og ro til at suge inspirationen til dig, og få en snak med en professionel fagmand fra Milton Huse.
Bestil en fremvisning herunder alle ugens dage. Du er også altid velkommen til at booke på tlf. 7562 4300.
Hvad koster det at bygge et nyt hus?
Dit nye hus behøver ikke at koste en bondegård. Prisen afhænger af dine ønsker, men du kan være sikker på én ting: Du får en god pris hos os. Hvis du gerne vil have et fingerpeg om, hvad dit drømmehus koster, er vores priseksempler en god hjælp.
Hvad er et typehus?
Det er løsningen for dig, som gerne vil bo lækkert og have meget hus for pengene uden at give køb på muligheden for at bestemme selv. Vi kalder det typehuse, fordi vi arbejder med gennemprøvede løsninger inden for nogle bestemte rammer. De er til gengæld så brede, at du kan få det stort set, som du ønsker. For dit nye hus skal vel ikke bare være endnu et i rækken?
Skal vi mødes til en snak om mulighederne?
Book et uforpligtende møde med en af vores byggerådgivere. Du behøver ikke have styr på det hele endnu. Vi brygger en kop kaffe, taler om jeres ønsker og finder ud af, hvordan Milton kan hjælpe jer med husdrømmen.
Book et møde med en byggerådgiver
byg med os. bo som dig
Byg dit nye hjem med ét telefonnummer
Nybyg skal ikke kun være lækkert at bo i – vejen derhen skal også være god og tryg. Derfor får du en fast byggerådgiver, som er klar til at hjælpe dig og svare på alle dine spørgsmål. Hele vejen. Fra det allerførste møde til dagen, hvor du får nøglerne til dit nye hus i hånden.
Der er mange, der kan bygge et hus. Så hvorfor bør du bygge med os?
Vi ved, at du ved, at der findes andre end os. Vi ved også, at det kan være svært at se forskel på husene. Så hvorfor skal du bygge med Milton? Her er fem gode grunde:
1. Én kontaktperson fra start til slut
2. Ingen betaling før dit hus er klar til indflytning
3. Vi tegner dit hus fra bunden
4. Erfarne byggeledere og en gennemprøvet byggeproces
5. Faste underleverandører og gode priser
Hvad koster det at bygge?
Dit nye hus behøver ikke at koste en bondegård. Prisen afhænger af dine ønsker, men du kan være sikker på én ting: Du får en god pris hos os. Hvis du gerne vil have et fingerpeg om, hvad dit drømmehus koster, er vores priseksempler en god hjælp.
Viden om nybyggeri
Se, hvordan vi hjælper dig til dørs
| Sådan ser processen ud |
| Sådan sikrer vi et godt samarbejde |
| Sådan tegner vi det rigtige hus til jer |
| Sådan får I en god pris |
| Sådan bygger vi jeres hus |
| Sådan arbejder vi med ansvarlighed |
Lad dig inspirere af hundredevis af plantegninger. Bo som dig.
Hvordan ser dit drømmehus ud? Alle vil bo som ingen andre, men de fleste vil gerne have inspiration. Udforsk vores mange plantegninger, eller skitser din egen i vores tegneprogram.
Fra storbyen til Strøby Egede
Philipp og Napat byttede københavnerlejligheden ud med sommerhusstemning og vild have i Strøby Egede. Her kan du læse parrets nybyggerhistorie, der bl.a. involverer en halv million thailandske Youtube-visninger.
Heading
Constructio tenere aliud et enim tuus optimis flagitiosum in doctissimos quod possum inquam in in.
Pythagoras callipho si quae voluptatum infamia sironem tamen et sequuntur quamquam quamquam.
Skal vi sende dig noget at læse i?
I vores nybyggerkatalog får du plantegninger, billeder, cases, gode råd og viden samlet i ét. Oplagt for dig, som drømmer om at komme i gang. Få det leveret digitalt eller fysisk, kvit og frit.
Kan vi gøre det bedre end de andre?
Har du fået et tilbud fra et andet byggefirma? Send det til os, og lad os give dig et alternativ. Vi gennemgår tilbuddet grundigt, sammenligner æbler med æbler og kommer med vores bedste bud inden for 48 timer. Er der nogen grund til ikke at gøre det?
Skal vi mødes til en snak om mulighederne?
Så book et uforpligtende møde med en af vores byggerådgivere. Du behøver ikke have styr på det hele endnu. Vi brygger en kop kaffe, taler om jeres ønsker og finder ud af, hvordan Milton kan hjælpe jer med husdrømmen.